Informations produits
-
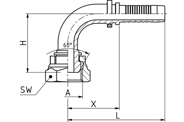
Données techniques
DN: 51 Size: 32 Pouce: 2 Filetage + norme: Tête d'étanchéité BSP, cône 60° avec écrou-raccord, filetage BSP Filetage de raccord A: G 2" X [mm]: 121,5 L1 [mm]: 196,5 H [mm]: 125,0 SW1 [mm]: 70 Type d’écrou: inséré Désignation de raccord Indunorm: BF 90° Forme: 90° Gamme d'embout à sertir: Programme universel XV Matériau: Acier de décolletage Résistance à la rouille blanche [h]: 120 Résistance à la rouille rouge [h]: 720 Surface: Zinc-nickel Type de raccord: DKR 90°
