Informations produits
-
Données techniques
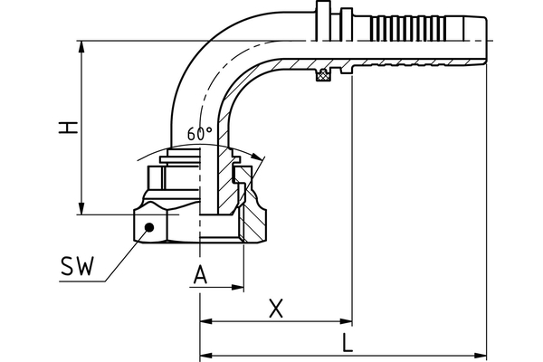
DN: 16 Size: 10 Pouce: 5/8 Filetage + norme: Tête d'étanchéité BSP, cône 60° avec écrou-raccord, filetage BSP Filetage de raccord A: G 3/4" X [mm]: 45,0 L1 [mm]: 84,0 H [mm]: 54,0 SW1 [mm]: 32 Type d’écrou: serti Désignation de raccord Indunorm: BF 90° Forme: 90° Gamme d'embout à sertir: Programme universel XV Matériau: Acier de décolletage Résistance à la rouille blanche [h]: 120 Résistance à la rouille rouge [h]: 720 Surface: Zinc-nickel Type de raccord: DKR 90°

